견적문의
페이지 정보
작성자한경훈
본문
업무에 노고가 많으십니다.
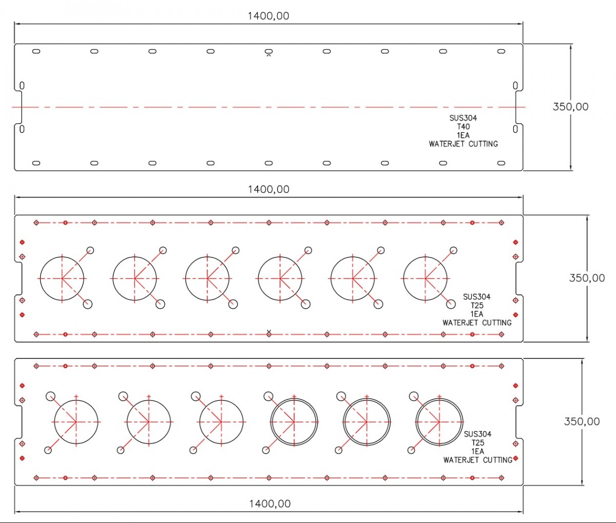
첨부파일 3종 각1ea 견적의뢰 드립니다.
가격 (운송비별도표기) 및 가능한 납기 회신하여 주시면 감사하겠습니다.
첨부파일 3종 각1ea 견적의뢰 드립니다.
가격 (운송비별도표기) 및 가능한 납기 회신하여 주시면 감사하겠습니다.
첨부파일
- 6010_20_30-01-WATERJET.dwg (444.1K) 77회 다운로드 | DATE : 2024-12-06 14:52:35
- 이전글실리콘패드 (경도80) 제작 문의 24.12.25
- 다음글우레탄의 워터젯 가공비 견적 24.11.04
댓글목록
등록된 댓글이 없습니다.
